Plateau Daily News
Skip to content
News
Sports
Outdoors
Contact
Donate
About
Layout1
9 Dec 2020
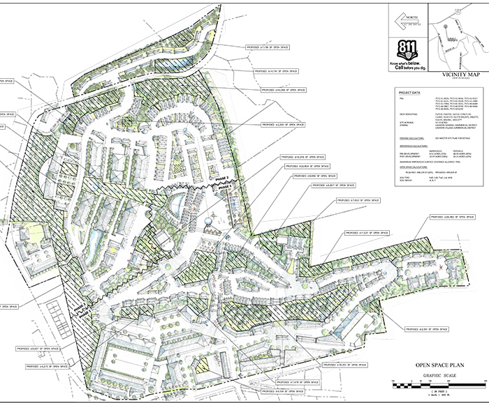
Fate of proposed Cashiers Hillside development still undecided
700 × 578
Previous Image
Leave a Reply
Cancel reply